- 
					您的廚房採用甚麼設計?最常見的廚房格局包括: i. 一字形廚房 ii. 雙排形廚房 iii. L 形廚房 iv. U 形廚房 v. 島形廚房 vi. 半島形廚房 
- 
					如何整理廚房用品?廚房是每個居室中的重要空間。最理想的廚房設計,必須兼顧煮食流程所需,即符合「廚房黃金三角」的原則。 
 廚房黃金三角「廚房黃金三角」的概念是指在符合人體工學設計的大前提下,完美整合三大入廚元素,即是雪櫃及工作枱(食物貯存及準備空間)、煮食爐(烹調空間)及鋅盆(清潔空間)。「廚房黃金三角」不慬是廚房整體設計的重點,更是提升烹調效率的關鍵所在。 
 設計廚房時緊記這個「廚房黃金三角」的原則,自可增進下廚的樂趣!
- 
					一字形廚房在一字形廚房之中,雪櫃、鋅盆、煮食爐三大入廚工作枱並列靠向同一面牆前,令「廚房黃金三角」化為一條直線。設計時應將鋅盆放在中間,而煮食爐與雪櫃則分置兩端。 一字形廚房一般適用於小型家居,因為這種設計會將兩端工作枱的距離拉遠。 
- 
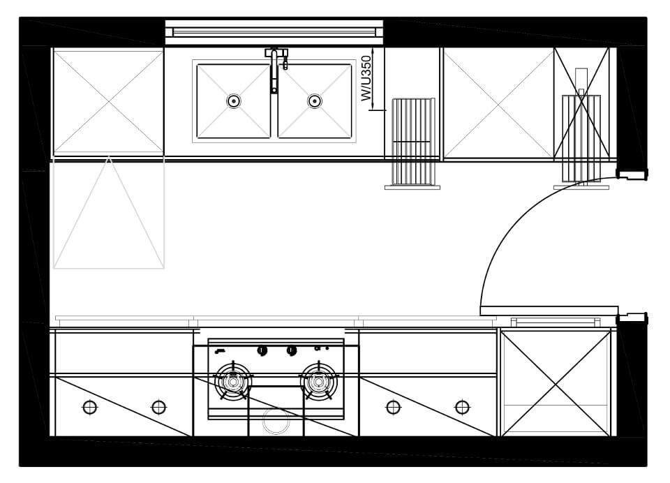
					雙一字形廚房雙一字形廚房設於兩面牆之間,中間是細長的走廊。煮食爐與雪櫃兩大入廚工作枱通常倚靠同一面牆而立,而另一面牆則設有鋅盆。中間通道必須保持最少 1200 毫米闊,以確保安全,並方便在不同工作枱間往來通行。 
- 
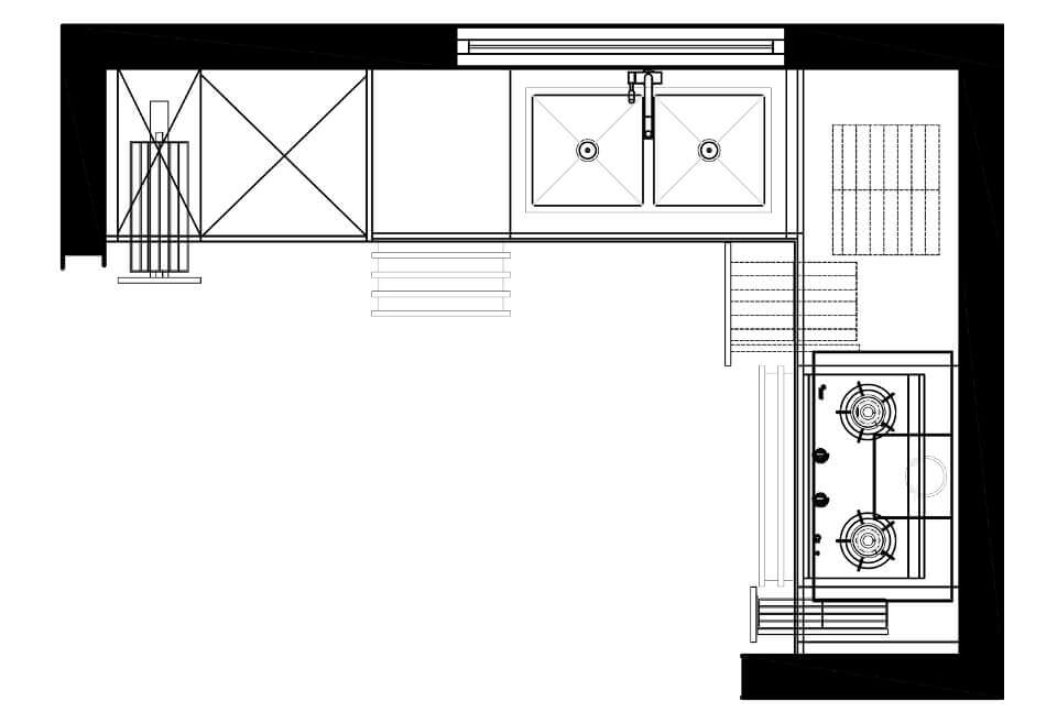
					L 形廚房L 形是最常見的廚房設計之一,適合不同大小的家居。這種設計由呈直角 L 形的兩面牆形成一個三角區域,有效縮短各工作枱間的來回距離之餘,亦令廚具、貯物空間與工作枱的設置更具彈性。入廚流程通常是從到雪櫃拿食材開始,之後是清洗工序,然後就是煮食和上桌。在典型的 L 形廚房中,三大工作枱會以二對一的組合分設於兩面牆前。 
- 
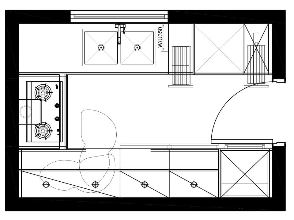
					U 形廚房在 U 形廚房,雪櫃、鋅盆及煮食爐各靠一面牆,提供更寬敞的入廚空間。一般而言,鋅盆會設於中間一面牆,煮食爐和雪櫃則分佔兩側,中間須保留最少 1200 毫米闊的空間。U 形設計適合面積較大的廚房,可讓多於一人同時煮食。 
- 
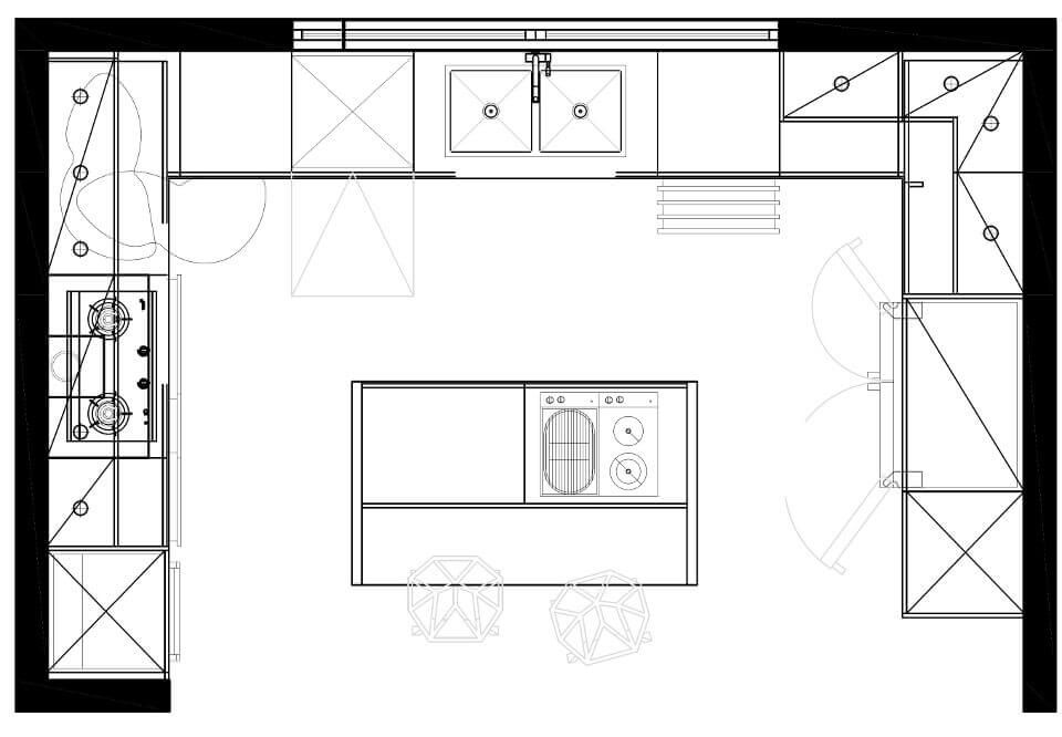
					島式廚房在廚房加入一個獨立櫃面,既可增加入廚與貯物空間,亦可配搭高腳椅,塑造出半島式廚房般的用餐區域。空間使用得宜的話,入廚時還可以分工合作,兩個人同時煮食,而又不怕互相阻礙。 
- 
					半島式廚房半島式廚房需要的空間較島式廚房小,適合由面積較大、但牆身較小的 L 形廚房改建而成。半島式廚房的櫃面還可以用於設置工作枱,縮減入廚三大工作枱(雪櫃、鋅盆、煮食爐)之間的距離之餘,又可以提供如島式廚房般充裕的分工合作空間。 
規劃廚房空間 | 收納及儲物櫃整合 | Mia Cucina
Mia Cucina提供一站式的廚房設計平衡美感與廚房收納,為用家重新規劃自「煮」空間。用家可根據家居空間及個人需要,選擇適合的廚房設計,將儲物及收納細節融入其中。
煤氣公司旗下高級廚房品牌Mia Cucina 廚櫃增添收納空間
現代家居生活除了講求舒適度外,雅緻的家居設計亦是締造理想生活環境的重要關鍵,廚房設計當然亦不例外。作為家中使用頻繁的空間,廚房的規劃影響着家居安全度與生活便利度,而好的設計當中大有學問,需考慮各種因素,如善用廚櫃配件,包括大型儲物櫃、高身拉籃、自動升降櫃等, 增添收納容量,令廚房更寬敞整齊,同時令用家使用時更方便;適度的照明則能打亮室內空間,改善觀感 。此外,作為廚房專家的Mia Cucina更遠赴意大利及其他歐洲國家搜羅各款優質的爐具產品選擇 ,為顧客打造高品質生活。
Mia Cucina提供一站式的廚房設計服務,為追求高品質生活 的用家重新規劃空間。顧客可先從Mia Cucina陳列室瀏覽各款廚房主題設計,獲取靈感,再由設計師實地考察現有廚房裝潢及了解顧客需要 的收納 空間,繪製廚櫃及廚房設計圖。
不論是一字形、雙一字形、L形、U形、島式或半島式,Mia Cucina的專業團隊都會以善用空間為準則,活用「廚房黃金三角(work triangle)」原則及人體工學設計,將雪櫃(食物收納)、爐具(煮食)及鋅盆(清潔)三要點安排於有利位置,配以簡約型格歐式廚櫃,使廚房的收納空間、設計及效能均得到大大提升。
有了初步圖則,團隊會與顧客來回磋商並修訂各項細節,從廚房的陳設及收納空間到廚櫃的物料及款式均可按個人需要調節,以確保卓越品質及服務質素。
Mia Cucina的廚房設計以精緻簡潔、時尚型格為主軸,揉合傳統智慧與現代科技,從廚櫃物料到用具排列均切合香港家庭需要,節省位置、拓展空間之餘亦不失時尚感,讓入廚烹飪變得樂趣無窮,重新演繹優質生活的定義。
廚房風格
體驗家居入廚新品味 
                     











